Nằm trong số nhất nhiều dự án nhà phố mà Kiến trúc Không Gian Xanh Vũng Tàu đã hoàn thành phương án thiết kế trong đầu năm 2020, Toàn’House là một công trình thiết kế nhà phố 3 tầng tại đường Lê Thánh Tông, Vũng Tàu với phong cách hiện đại, đường nét hình khối ấn tượng và thú vị…
Thông tin dự án
Chủ đầu tư: Mr. Toàn
Địa chỉ : Lê Thánh Tông, TP. Vũng Tàu
Dự án: Thiết kế nhà phố
Thiết kế và thi công trọn gói: Kiến trúc Không Gian Xanh Vũng Tàu
Năm thiết kế: 2020
Phong cách thiết kế: hiện đại, tiện nghi.

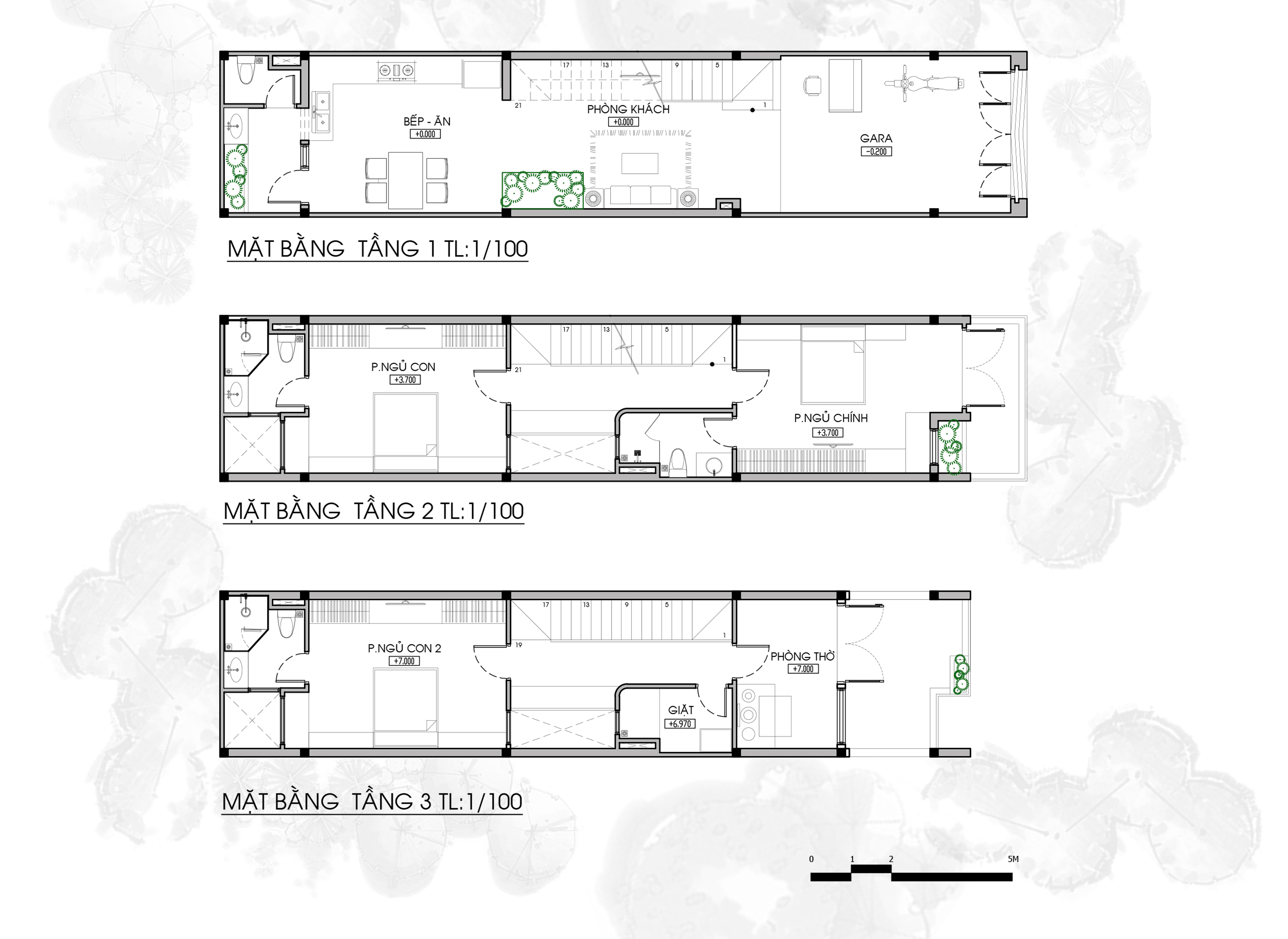
Sở hữu diện tích điển hình 82m2 với mặt tiền rộng 4m, các Kiến trúc sư của Kiến trúc Không Gian Xanh Vũng Tàu đã đưa ra một phương án thiết kế mặt tiền phù hợp với cảnh quan hiện trạng nhưng vẫn giữ được nét cá tính riêng của ngôi nhà.
Điểm hạn chế của loại hình thiết kế nhà phố 3 tầng đó là diện thoáng rất ít, vì thế phương án mặt bằng được tính toán đưa vào những khoảng thông tầng ở giữa và sau nhà, làm tăng hiệu quả lưu thông gió, lấy sáng và điều hòa không khí cho ngôi nhà.
Công năng sử dụng được bố trí tối ưu diện tích, thiết kế khéo léo khiến tất cả các không gian trong nhà đều tiếp xúc với ánh sáng tự nhiên và gió trời.

Hình khối công trình sử dụng những đường nét mạnh mẽ, xen kẽ chi tiết lam đứng. Tone màu trung tính xám – trắng xen kẽ một ít tone vàng ấm của màu gỗ
Tất cả các chi tiết đã hài hòa tạo nên một diện mạo công trình đầy cá tính, độc đáo. Công trình đang gấp rút hoàn tất hồ sơ kỹ thuật và sẽ tiến hành thi công trong năm 2020.
Các hình ảnh thiết kế của công trình:




Click tại đây để xem thêm các thiết kế nhà phố của Kiến trúc Không Gian Xanh.
Xem thêm thiết kế nội thất của các công trình nhà phố tại chuyên mục Nội thất